THE PROPERTY

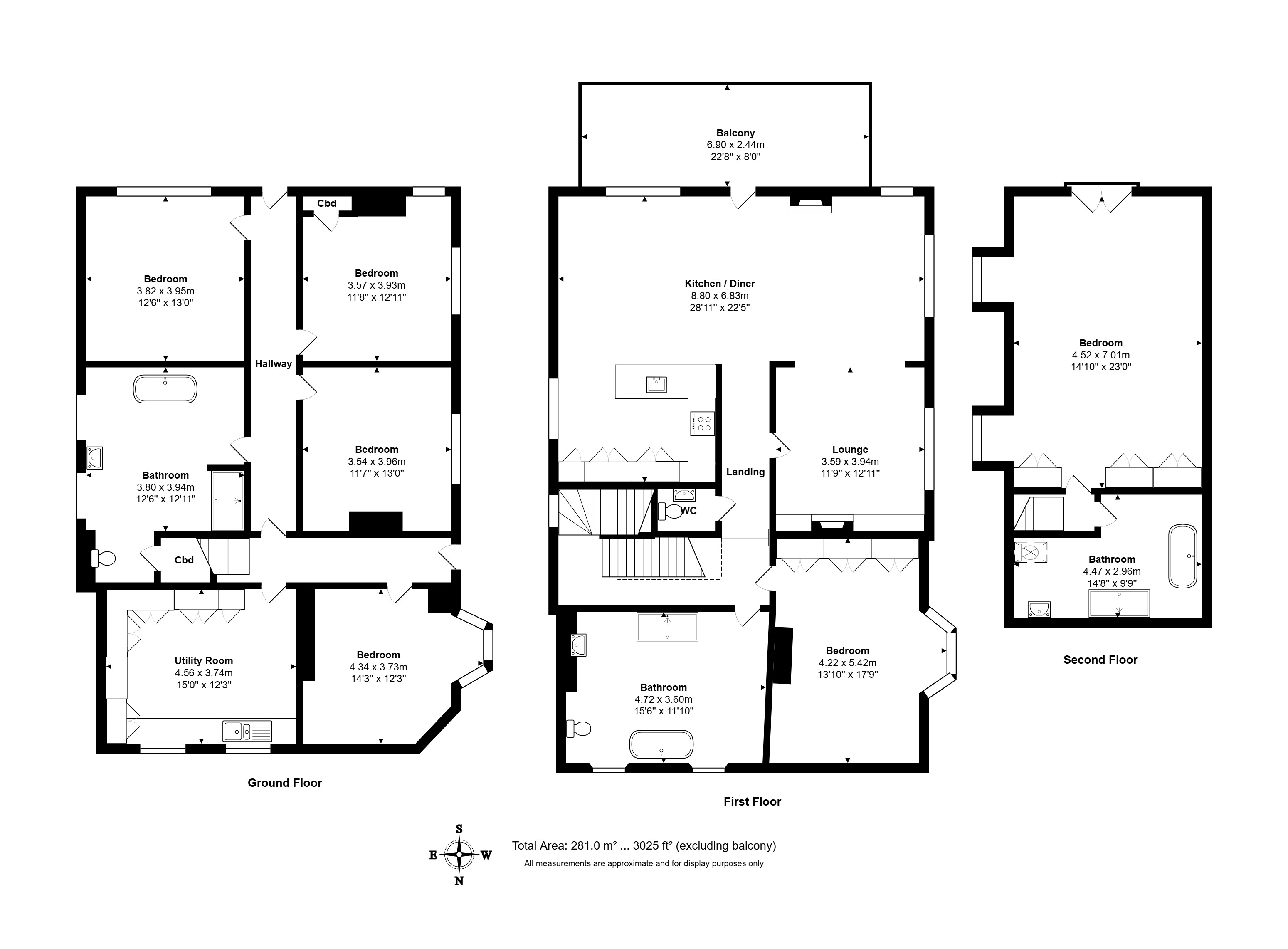
Entrance hallway from the Avon Wharf entrance provides access to all ground floor accommodation, with tiled flooring continuing throughout, comprising four spacious double bedrooms, all featuring plantation shutters and ample space for furnishings and built-in storage.

The bedrooms are served by a beautifully appointed principal bathroom, featuring large format tiled flooring, exposed brick and partial tiling to the walls, and a striking feature well with a glass cover. The bathroom is completed with a freestanding bath and chrome shower mixer tap, oversized walk-in shower cubicle, traditional handwash basin, WC, and a chrome heated towel rail.

To the front aspect, a practical utility room offers extensive storage cupboards and work surfaces, with space and plumbing for white goods.

Also positioned to the front is a well-proportioned reception room, enjoying a striking feature bay window with floor-to-ceiling glazing offering a charming aspect down Christchurch High Street.

From the hallway, stairs rise to the first-floor landing, where a generous guest suite is located. This room offers a delightful bay window and full-width fitted wardrobes, and is served by a stylish adjacent four-piece bathroom. Featuring attractive mosaic tiled flooring and a feature brick wall, the suite includes traditional sanitaryware with a freestanding roll-top bath and chrome shower mixer, a spacious walk-in shower cubicle with rainfall attachment, handwash basin, and WC.

Situated to the rear is the beautifully presented semi open-plan triple-aspect living space, arranged across kitchen, dining, and family areas. Stunning wood flooring flows throughout, and the space opens onto a large balcony with contemporary glass balustrade, providing ample room for garden furniture and elevated views over the river.

The living area is thoughtfully zoned into two distinct areas, each with a feature wood-burning stove and bespoke built-in alcove storage, creating a warm and inviting focal point. Expansive floor-to-ceiling windows invite an abundance of natural light, and this space leads seamlessly into the kitchen.

The exceptional kitchen features a stylish selection of two-tone wall, floor, and drawer units, finished with premium quartz work surfaces and a mosaic-tiled splashback. A peninsula unit forms a useful breakfast bar, provides additional storage, and elegantly defines the kitchen from the wider living space. Integrated appliances include a double oven, microwave, dishwasher, and halogen hob with extractor over.

The dining area comfortably accommodates an ten-seater table, enhanced by a bespoke window seat with surrounding storage and sash windows framing the southerly aspect.

From the first-floor landing, stairs rise to the second floor, where the superb primary suite is situated. Bathed in natural light, this dual-aspect bedroom features fitted wardrobes, ample space for a dressing area, and French doors opening onto a Juliet balcony with far-reaching views. The en-suite bathroom is finished to an exceptional standard, comprising a freestanding roll-top bath, a large walk-in shower with rainfall head, and stylishly tiled walls and floors.

THE SITUATION

Christchurch is a delight; a harbour side town of character and charm located where the Avon and Stour rivers flow into Christchurch Harbour. Positioned between Bournemouth and the New Forest, Christchurch is a lively town with mainline station and a good variety of independents and national brands (such as Waitrose).

It has become something of a foodie destination with cafes, pubs, and restaurants, such as The Jetty on Mudeford Quay. It is also the venue for a popular food and wine festival that attracts some high profile chefs. Other attractions include the priory, castle ruins, nature reserves, nearby beaches and Mudeford Quay with ferry service to Mudeford Spit (with iconic beach huts) and Hengistbury Head. A wide range of activities are available such as cricket, golf and water sports.

Another benefit for families are the schools – rated at least ‘good’ by Ofsted, while Christchurch Infant School, Mudeford Infant and Junior Schools and Twynham comprehensive are all graded ‘outstanding’. An attractive range of property includes architect-designed new builds, fine Georgian houses and modern townhouses, some in waterside locations and with views across Christchurch Harbour.

Living in Christchurch

Christchurch is a delight; a harbourside town of character and charm located where the Avon and Stour rivers flow into Christchurch Harbour.

Positioned between Bournemouth and the New Forest, Christchurch is a lively town with mainline station and a good variety of independents and national brands (from Boots to Waitrose). It has become something of a foodie destination: chock-a-block with cafes, pubs, and restaurants, such as The Jetty on Mudeford Quay. It is also the venue for a popular food and wine festival that attracts some high profile chefs.

Other attractions include the priory, castle ruins, nature reserves, nearby beaches and Mudeford Quay with ferry service to Mudeford Spit (with iconic beach huts) and Hengistbury Head. A wide range of activities are available such as cricket, golf and watersports. Another boon for families are the schools – rated at least ‘good’ by Ofsted, while Christchurch Infant School, Mudeford Infant and Junior Schools and Twynham comprehensive are all graded ‘outstanding’.

An attractive range of property includes architect-designed new builds, fine Georgian houses and modern townhouses, some in waterside locations and with views across Christchurch Harbour.

Looking for an Estate Agent in Christchurch? Spencers are here to help.

Back to results

£1,500,000

Avon Wharf, Christchurch

  • Bedrooms Bedrooms: 5
  • Bathrooms Bathrooms: 3
  • Receptions Living Rooms: 3

**Guide Price £1,500,000 - £1,575,000** An exceptional Grade II listed riverside residence, offering an expansive 3,000 sqft of elegant accommodation and a superb 39ft private mooring. Perfectly positioned in the heart of Christchurch, this remarkable home is within effortless reach of boutique shops and acclaimed restaurants. This extremely versatile property would be ideal for family or multi- generational living or could continue to be used as a successful holiday let.

Property Details

  • Council Tax: Band G
  • Tenure: Freehold

Spencers Highcliffe Office


368-370
Lymington Road
Highcliffe
Christchurch
BH23 5EZ

Enquire about this property

    Full name *
    Phone number *
    I’m interested in


    A selection of Similar Properties