OUTSIDE

The generous south-west facing rear garden wraps around the property, enclosed by mature hedging for privacy and tranquillity while capturing sunlight throughout the day.

A well-maintained deck extends along the southern side of the house, leading onto a large lawn—perfect for family enjoyment or entertaining.

To the front, a spacious driveway provides ample off-road parking for multiple vehicles, with enough room to accommodate a motorhome or boat.

A single garage is located at the end of the drive for additional storage or secure parking.

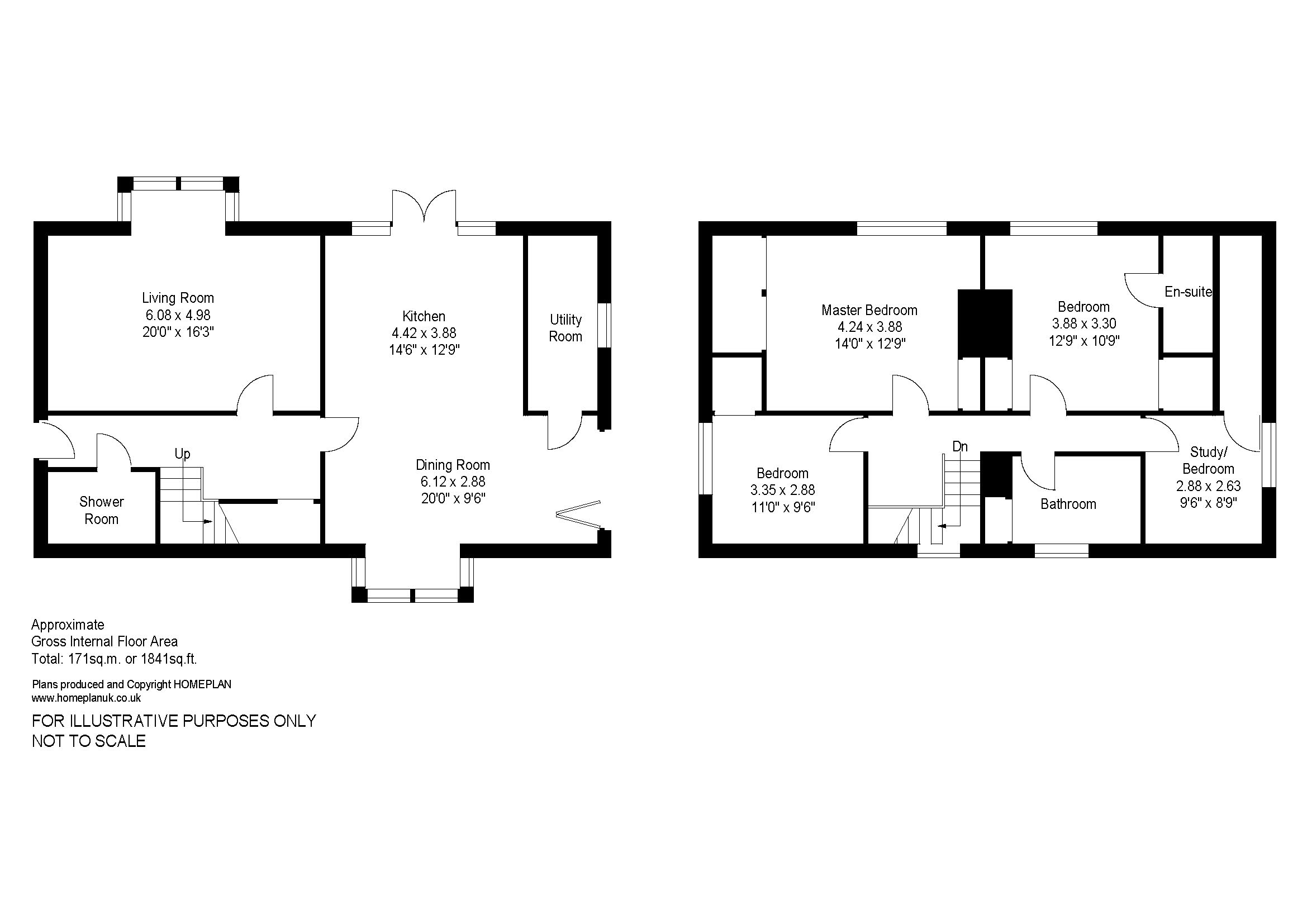
THE PROPERTY

You’re welcomed into a bright and inviting entrance hallway, which leads to two principal reception rooms and a convenient downstairs shower room/cloakroom.

To the left, a door opens into the spacious main living room, featuring hardwood flooring, a character fireplace, and a large bay window that floods the space with natural light.

Continuing through the hallway—with hardwood flooring throughout—a casement door leads into the heart of the home: a stunning open-plan kitchen, dining, and living area.

The well-appointed kitchen is fitted with a range of wall-mounted and base units, custom-designed around the range cooker, fridge-freezer, and dishwasher. A central island provides additional storage and workspace. French doors open onto a sunny, south-facing decking area—ideal for outdoor dining. There is ample room for a full-sized dining table, and a cosy snug area with bifold doors opens onto a second private patio.

A separate utility room just off this area adds further practicality.

Upstairs, the open landing leads to three generously sized double bedrooms, including a luxurious principle suite complete with a stylish en-suite shower room featuring a walk-in shower, wash hand basin, and WC.

The second bedroom enjoys a southerly aspect with views over the garden, while the third double bedroom overlooks the front with an easterly outlook.

At the far end of the landing is the fourth bedroom, a versatile space ideal for use as a home office, nursery, or single bedroom, complete with built-in storage.

A modern family bathroom serves the remaining bedrooms and features a full-length bathtub with overhead shower, a wash hand basin, and WC.

THE SITUATION

Barton on Sea is a quiet residential area in a stunning coastal setting with beach and clifftop views across Christchurch Bay, sweeping from Hurst Castle to Hengistbury Head. The sand and shingle beach is popular with dog walkers while the cliff top attracts paragliders.

Barton has been discovered by young families, attracted by the relaxed outdoorsy lifestyle, with coast on one side and New Forest on the other, plus good state and independent schools; these include Durlston Court and Ballard School, both rated ‘excellent’.

Facilities include clifftop restaurants and Barton on Sea Golf Club, a 27-hole clifftop course. Barton also benefits from the extensive amenities of neighbouring New Milton. Among these are a mainline station with train services to London in around two hours, arts centre, selection of shops ranging from an M&S food store to a traditional department store and weekly market.

Living in Barton on Sea

Barton on Sea enjoys a stunning coastal location with views stretching from Hurst Castle to Hengistbury Head. In addition it benefits from all of the facilities of neighbouring New Milton, such as mainline station, arts centre, weekly market and range of shops.

Although Barton on Sea has a history dating back to Anglo Saxon times it developed relatively recently and comprises mostly avenues and closes of mid-century and later detached family homes, plus a row of old coastguard cottages, substantial properties in big plots with even bigger views on Barton Common Road and some imaginative new builds including town houses.

Traditionally it has been a popular area for those considering retiring, but it also offers a great deal for families with parks and excellent state and independent schooling. New Milton Junior School is rated ‘good’ by Ofsted, while both New Milton Infant School and The Arnewood School (11-19 Academy), are rated ‘outstanding’ by Ofsted. And Durlston Court Preparatory is ranked an impressive number 46 in The Times list of the top 100 independent prep schools. Local facilities include clifftop cafes, a deli and Pebble Beach restaurant which is a Good Food Guide stalwart, plus there’s a 27-hole clifftop golf course with impressive views.

Looking for an Estate Agent in Barton on Sea? Spencers are here to help.

Back to results

£900,000

Barton on Sea, New Milton

  • Bedrooms Bedrooms: 4
  • Bathrooms Bathrooms: 3
  • Receptions Living Rooms: 2

NO FORWARD CHAIN - Located just moments from the picturesque clifftops of Barton on Sea, this charming four-bedroom detached cottage beautifully blends character features with modern finishes throughout. Offering superb modern living space, four bedrooms, and three bathrooms, this home provides idyllic family living, complemented by a superb south-west facing wrap-around garden.

Property Details

  • Council Tax: Band F
  • Tenure: Freehold

Spencers Highcliffe Office


368-370
Lymington Road
Highcliffe
Christchurch
BH23 5EZ

Enquire about this property

    Full name *
    Phone number *
    I’m interested in


    A selection of Similar Properties