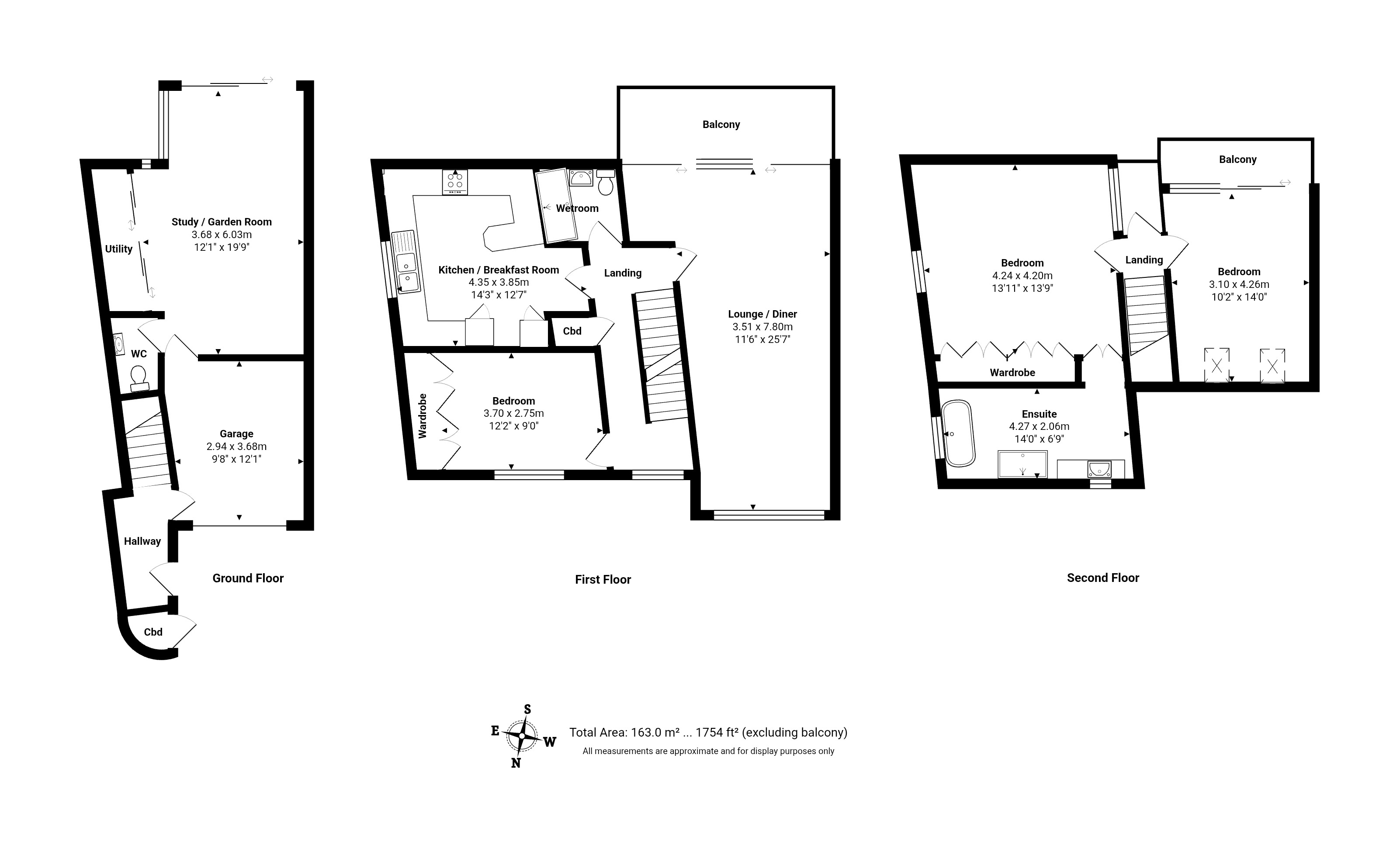
THE PROPERTY

You approach the property via a smart, brick-paved driveway, which offers off-road parking and access to the integral garage. Entering through the front door, you arrive in a welcoming entrance corridor. From here, there is internal access to the garage via a single door, and a staircase rising directly to the first floor. Arriving on the first floor, you are greeted by a central hallway that provides access to the main living accommodation.

To the right, a door leads to an impressive living dining room with both front and rear aspects. This generous space comfortably accommodates a full suite of living room and dining furniture. To the rear, large sliding patio doors open onto a stunning south-facing balcony, complete with glass balustrade and composite decking, offering uninterrupted views across the private mooring and the tranquil waters of Rossiters Quay.

Back off the hallway, there is a door to the separate, modern kitchen. This well-appointed space features a contemporary range of wall-mounted and floor- standing units with sleek, wraparound work surfaces. There is space for a large American-style fridge/freezer, integrated appliances throughout, and a stainless steel sink positioned beneath an east-facing window.

Also on the first floor is bedroom four, which could easily serve as a home office or snug sitting room. And there is also a stylish wet room with WC, wash hand basin, and open shower area, finished with modern tiling throughout just off the hallway.

A further staircase leads from the hallway to the second floor, where the principal bedrooms are located.

The principal bedroom is particularly spacious, enjoying excellent ceiling height, an east-facing window, and a full wall of floor-to-ceiling fitted wardrobes. Cleverly integrated into this bank of storage is a door leading to the luxurious en-suite, comprising WC, wash hand basin, separate bathtub, and walk-in shower, all finished with high-end contemporary tiling and a window to the front.

Also on this level is bedroom two, a good-sized double room that benefits from sliding doors opening onto a second south-facing balcony with elevated views over the quay and river – perfect for a peaceful morning coffee or evening drink.

Returning to the ground floor, the integral garage offers more than just parking. A door at the rear of the garage leads into a versatile room that has previously been used for various purposes including a guest bedroom, informal sitting room, or large home office. This space also includes a door to separate WC with wash hand basin. Along with cleverly concealed – behind sliding doors – is a utility area with worktop, washing machine, dryer, and additional storage cupboards.

From this ground floor living area, sliding patio doors lead directly onto the south-facing rear courtyard terrace – a private, paved space ideal for outdoor dining, barbecues, or simply enjoying the sun.

A secure gate from the terrace provides direct access onto your private mooring, allowing immediate enjoyment of the River Stour and easy reach to Christchurch Harbour and the South Coast beyond.

OUTSIDE

The property benefits from two private parking spaces, as well as an integral garage. There is also visitor parking directly opposite, reserved for guests within the Rossiters Quay development.

To the rear, the private south-facing mooring allows direct river access and is a rare and valuable feature for boating enthusiasts.

With beautifully presented interiors, flexible living spaces, multiple balconies, a private mooring, and one of the most sought-after locations in central Christchurch, this home offers the ultimate in waterside living.

THE SITUATION

Rossiters Quay is situated in the heart of the picturesque and historic town of Christchurch, only a stones-throw from the Quay with the nearby railway station and an excellent selection of shops, restaurants, cafes and pubs as well as a lively events calendar including regular markets and festivals. The property is also well positioned between the New Forest National Park with its vast expanses of heathland and woodland, and Bournemouth with miles of sandy beaches, thriving shopping centre and popular grammar schools.

Christchurch is a delight; a harbour side town of character and charm located where the Avon and Stour rivers flow into Christchurch Harbour. Positioned between Bournemouth and the New Forest, Christchurch is a lively town with mainline station and a good variety of independents and national brands (such as Waitrose).

It has become something of a foodie destination with cafes, pubs, and restaurants, such as The Jetty on Mudeford Quay. It is also the venue for a popular food and wine festival that attracts some high profile chefs. Other attractions include the priory, castle ruins, nature reserves, nearby beaches and Mudeford Quay with ferry service to Mudeford Spit (with iconic beach huts) and Hengistbury Head. A wide range of activities are available such as cricket, golf and water sports.

Living in Christchurch

Christchurch is a delight; a harbourside town of character and charm located where the Avon and Stour rivers flow into Christchurch Harbour.

Positioned between Bournemouth and the New Forest, Christchurch is a lively town with mainline station and a good variety of independents and national brands (from Boots to Waitrose). It has become something of a foodie destination: chock-a-block with cafes, pubs, and restaurants, such as The Jetty on Mudeford Quay. It is also the venue for a popular food and wine festival that attracts some high profile chefs.

Other attractions include the priory, castle ruins, nature reserves, nearby beaches and Mudeford Quay with ferry service to Mudeford Spit (with iconic beach huts) and Hengistbury Head. A wide range of activities are available such as cricket, golf and watersports. Another boon for families are the schools – rated at least ‘good’ by Ofsted, while Christchurch Infant School, Mudeford Infant and Junior Schools and Twynham comprehensive are all graded ‘outstanding’.

An attractive range of property includes architect-designed new builds, fine Georgian houses and modern townhouses, some in waterside locations and with views across Christchurch Harbour.

Looking for an Estate Agent in Christchurch? Spencers are here to help.

Back to results

£1,100,000

Christchurch

  • Bedrooms Bedrooms: 4
  • Bathrooms Bathrooms: 2
  • Receptions Living Rooms: 2

A beautifully presented four-bedroom townhouse, located within the prestigious Rossiters Quay development in Christchurch. This impressive waterside home boasts its own private mooring, multiple south-facing balconies, and is just a short, level walk to Christchurch town centre with its wide array of shops, cafés, and amenities.

Property Details

  • Council Tax: Band G
  • Tenure: Freehold

Spencers Highcliffe Office


368-370
Lymington Road
Highcliffe
Christchurch
BH23 5EZ

Enquire about this property

    Full name *
    Phone number *
    I’m interested in


    A selection of Similar Properties