The house occupies a glorious position set down a drive leading to this property only and enjoying expansive open westerly views across the New Forest. Set well back from the road the house is perfectly situated to enjoy open walks and cycle rides across the adjacent Forest while also being only four miles from the market town of Lymington. There is a nearby well regarded Pub at East End approximately a mile away There are excellent marinas, sailing clubs and facilities at both Lymington and Bucklers Hard while Brockenhurst station (7 miles) provides direct rail services to London Waterloo in approximately 2 hours.

The house is approached over a long drive over land owned and protected by the New Forest National Park. Electric vehicular and pedestrian gates open to a gravel drive and parking area adjacent to the house. There is a neat garden directly in front of the house but the majority of the formal gardens lie directly to the rear of the house and are extremely private. Immediately to the rear of the house is a paved terrace ideal for outdoor dining. The gardens are mostly laid to lawn with mature trees and shrubs at the boundaries. 

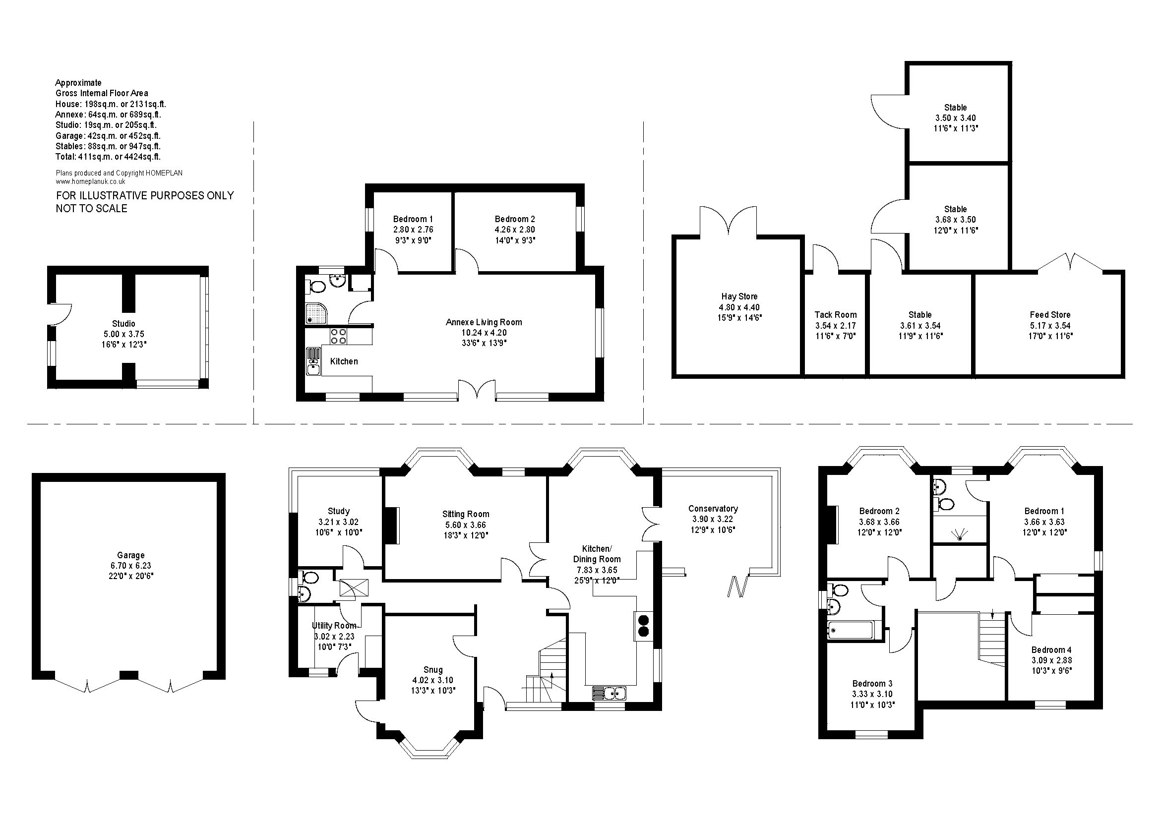
Immediately beyond the garden is a delightful separated area of garden which features a deck for a hot -tub and level lawns. This area of garden is linked to the main garden via a pedestrian gate but is allocated to The Old Piggery – a beautifully presented 2 bedroom guest cottage with an open plan kitchen / sitting / dining room featuring exposed beams and brickwork as well as a wood-burning stove. This room is open to the ridge height and there is also a shower room and two double bedrooms. 

There is an attractive period studio which is currently used as a home office/art studio which overlooking a  paddock of approximately 1 acre which is accessed via a 5-bar gate from the driveway. The drive continues past The Old Piggery to a stable yard featuring the stable block and garage. The Old Piggery has been operating as an airbnb property since the summer of 2023 and has been extremely popular. It generates an established and significant income, details of which are with the agent. It would also make extremely comfortable guest accommodation.

The stable block is well presented and offers three loose boxes, a tack room and workshop with solar panels, owned by the property, on the southerly aspect of the roof. The detached garage block provides garaging for two cars with individual hinged doors.

Beyond the stable yard is a small turnout paddock / vegetable garden as well as three paddocks of approximately 0.25 acres, 0.4 and 0.75 acres respectively which have water taps.

Services

Tenure: Freehold

EPC for Coronation Cottage : B Current: 81 Potential: 87

Council Tax Band for Coronation Cottage: F

EPC for The Old Piggery : D Current: 60 Potential: 85

Council Tax Band for The Old Piggery: B

Property Construction: Brick elevations with slate roof

Mains electricity and water. Private drainage via a septic tank which is located within the boundary of the property and the property has sole use of. There is no gas supply.

There are Solar PV Panels at the property that feed into the grid for which the owners are paid a tariff

Heating: LPG gas

Broadband: FFTP – Fibre to the property directly. Ultrafast broadband speeds of up to 1800 mbps are available at this property.

Conservation Area: Forest South East

Parking: Driveway and garaging

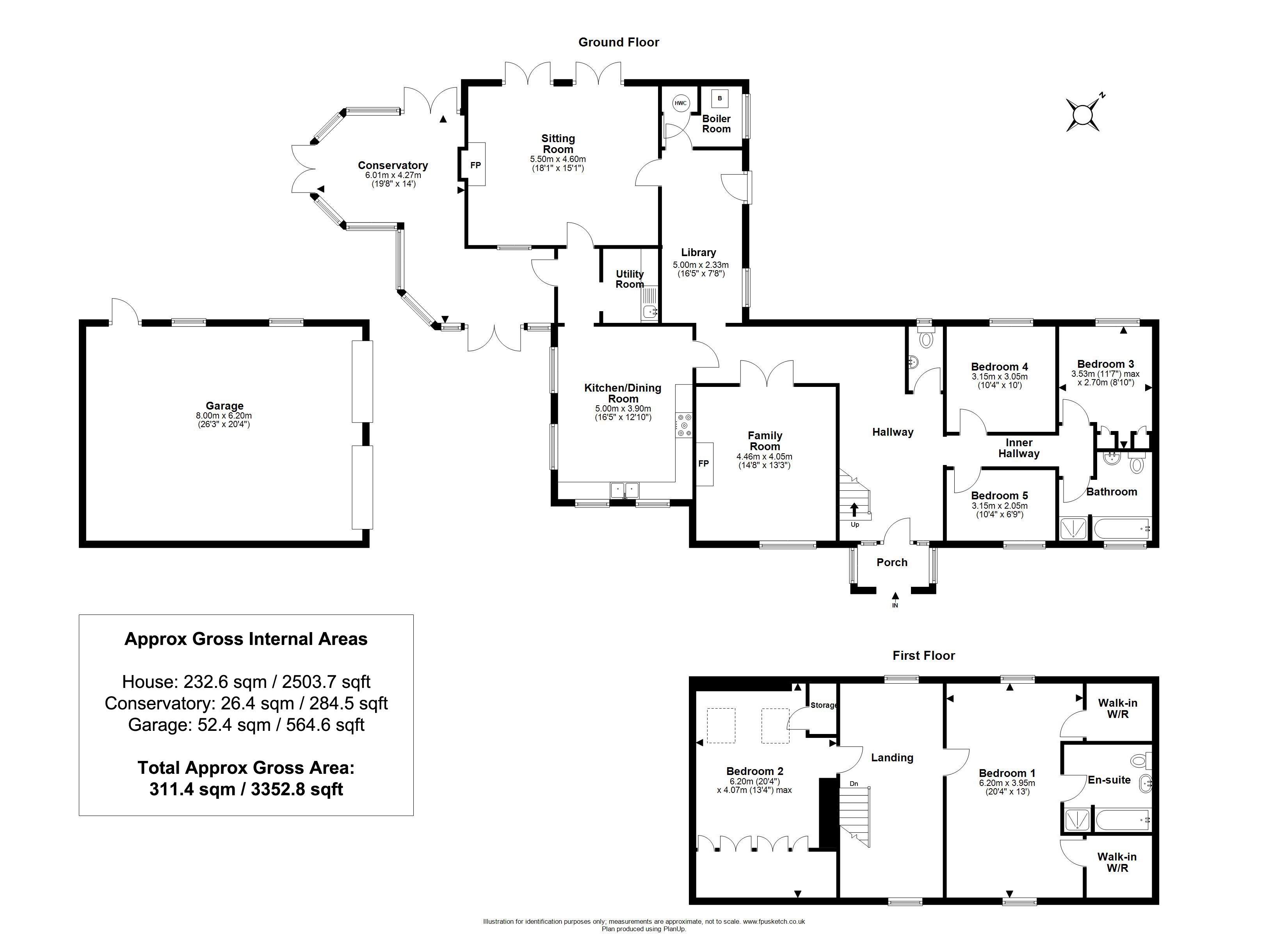
Set within a charming double-fronted period home, the front door opens to a wide staircase hall from which one reaches the principal reception rooms. A farmhouse-style kitchen/dining room, complete with a generous bay window, bespoke cabinetry with integrated appliances and a classic electric Aga, invites both everyday family meals and elegant entertaining as well as providing access to a fully glazed conservatory where floor-to-ceiling windows frame sweeping views westerly views of the open Forest and its spectacular sunsets. The principal sitting room echoes this appeal, boasting its own bay window, a wood-burning stove and further woodland vistas, while a cosy snug and a spacious study offer versatile spaces for relaxation or focused work. A practical utility room with garden access and a separate cloakroom complete the ground floor. Upstairs, a light-filled galleried landing leads to four double bedrooms, including a main suite with built-in wardrobes and a stylish en-suite shower room, alongside three further well-proportioned bedrooms and a beautifully appointed family bathroom. Throughout, original period details blend seamlessly with contemporary comforts, creating a home of enduring character and understated luxury.

The property features the benefits of Commoners rights.

Living in Beaulieu

Beaulieu, as its name suggests, is beautiful. This village is a jewel of the New Forest, sitting prettily beside the River Beaulieu with Palace House, the seat of the Montagu family, as backdrop. This is an estate village which has been in the keeping of the Montagu family for 477 years. Today Beaulieu is familiar worldwide for the National Motor Museum, but the village attracts visitors, too. It has a quaint High Street of smart independents in pretty brick and timber-framed period properties, including art gallery, chocolate studio, floral designer, plus gift shops, tea room, village stores, garden centre, community garden and the village school (rated ‘good’ by Ofsted).

As for property, there are some good-sized period country houses, while Dock Lane, which runs alongside the river, is considered one of the most prestigious addresses in the Forest with a selection of stunning architect-designed modern builds.

Looking for an Estate Agent in Beaulieu? Spencers are here to help.

Back to results

£2,400,000

East Boldre, Brockenhurst

  • Bedrooms Bedrooms: 6
  • Bathrooms Bathrooms: 3
  • Receptions Living Rooms: 5

An exceptional period house with breath-taking open views over the open Forest offering the complete rural package of direct Forest access, glorious gardens, paddocks, outbuildings and a 2 bedroom guest cottage with a strong airbnb track record. In all approximately 2.65 acres.  EPR - D

Property Details

  • Council Tax: Band F
  • Tenure: Freehold

Spencers Lymington Office


74 High Street
Lymington
SO41 9AL

Enquire about this property

    Full name *
    Phone number *
    I’m interested in


    A selection of Similar Properties