Bracken Lodge is situated close to the open forest and Hatchet Pond within close proximity of Beaulieu village centre and Bucklers Hard. The Georgian market town of Lymington lies to the west with its marinas and yacht clubs. There is also a popular marina at nearby Buckler’s Hard. The Beaulieu River Sailing Club is within one mile and offers opportunities for sailing enthusiasts, as well as the Royal Southampton Yacht Club in nearby St Leonard’s.

Bracken Lodge is situated close to the open forest and Hatchet Pond within close proximity of Beaulieu village centre and Bucklers Hard. The Georgian market town of Lymington lies to the west with its marinas and yacht clubs. There is also a popular marina at nearby Buckler’s Hard. The Beaulieu River Sailing Club is within one mile and offers opportunities for sailing enthusiasts, as well as the Royal Southampton Yacht Club in nearby St Leonard’s.

On entering the property there is a large entrance hallway with stairs rising to the first floor. The sitting room has two windows which overlook the garden and there is an further reception room which provides flexible use as either a secondary sitting room, study or fourth bedroom. The kitchen is a superb size and is open plan to a dining area which in turn leads to the conservatory/garden room. There is also a useful and very spacious utility room and separate cloakroom from the hallway.

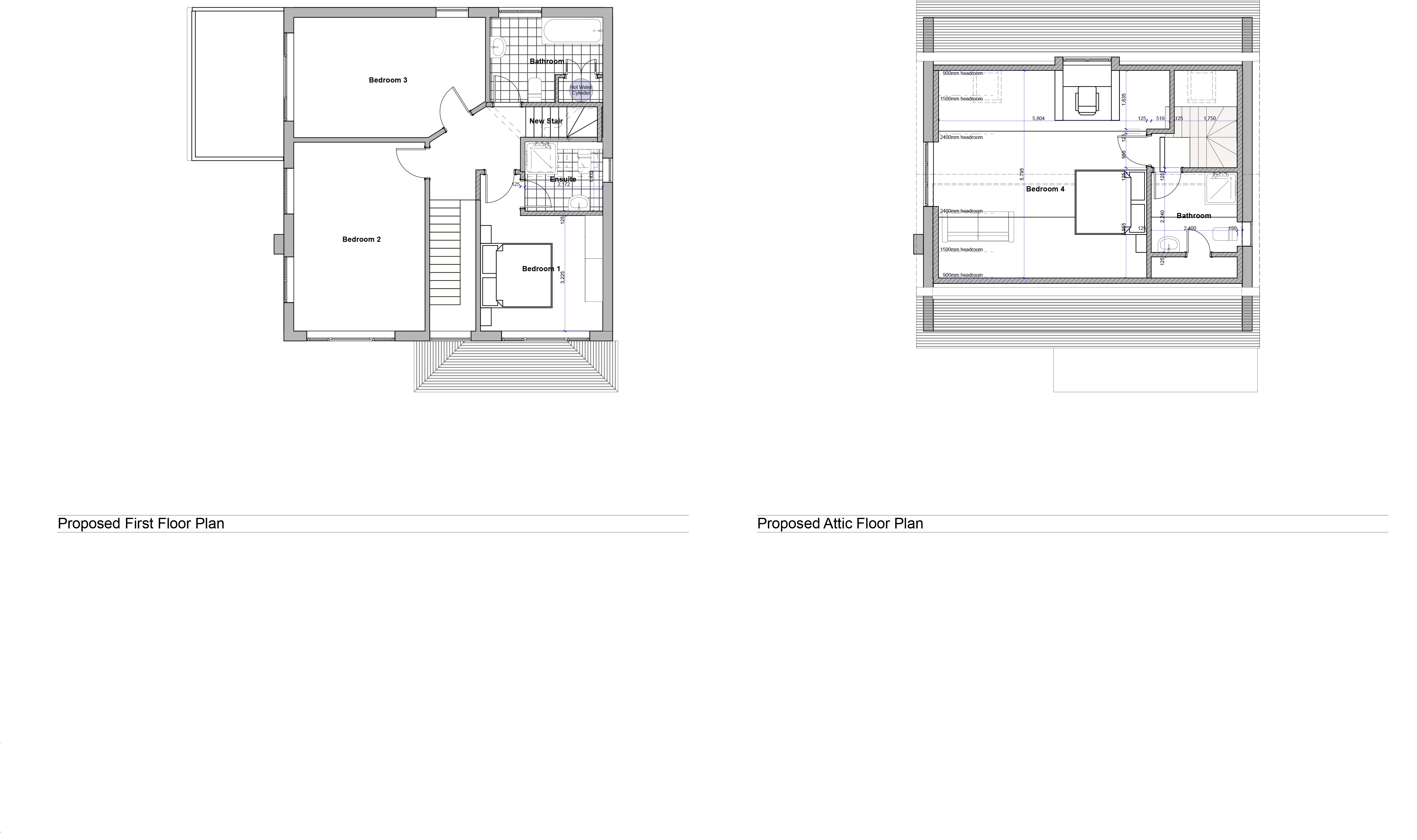
The size of the property rivals many four bedroom houses with a traditional layout and this is evident on the first floor. There are three large double bedrooms and an incredibly spacious family bathroom. The guest bedroom is conveniently served by an ensuite shower room.  There is recently approved planning to extend into the loft to create a spacious double bedroom with ensuite. Overall this is a lovely family home with a real sense of space and light throughout presenting very balanced accommodation.

On entering the property there is a large entrance hallway with stairs rising to the first floor. The sitting room has two windows which overlook the garden and there is an further reception room which provides flexible use as either a secondary sitting room, study or fourth bedroom. The kitchen is a superb size and is open plan to a dining area which in turn leads to the conservatory/garden room. There is also a useful and very spacious utility room and separate cloakroom from the hallway.

The size of the property rivals many four bedroom houses with a traditional layout and this is evident on the first floor. There are three large double bedrooms and an incredibly spacious family bathroom. The guest bedroom is conveniently served by an ensuite shower room. There is recently approved planning to extend into the loft to create a spacious double bedroom with ensuite. Overall this is a lovely family home with a real sense of space and light throughout presenting very balanced accommodation.

On entering the property there is a large entrance hallway with stairs rising to the first floor. The sitting room has two windows which overlook the garden and there is a further reception room which provides flexible use as either a secondary sitting room, study or fourth bedroom. The kitchen is a superb size and is open plan to a dining area which in turn leads to the conservatory/garden room. There is also a useful and very spacious utility room and separate cloakroom from the hallway.

The size of the property rivals many four bedroom houses with a traditional layout and this is evident on the first floor. There are three large double bedrooms and an incredibly spacious family bathroom. The guest bedroom is conveniently served by an ensuite shower room. There is recently approved planning to extend into the loft to create a spacious double bedroom with ensuite. Overall this is a lovely family home with a real sense of space and light throughout presenting very balanced accommodation.

To the front of the property the house is screened from the lane by a retaining fence and there is gated off street parking for several vehicles to the side. A pathway leads to the front door and gated access leads to the formal gardens.

The garden has a landscaped patio which provides a lovely entertainment terrace. The main garden is laid to lawn with mature planting surrounding and to the rear of the garden there is a secondary parking area and several outbuildings. As previously mentioned we feel this area could prove perfect for purchasers wishing to have secure storage for boats, cars or equestrian equipment.

Additional Information

Tenure: Freehold

Council Tax – E

EPC – C Current: 77 Potential: 88

Property Construction: Brick faced elevations and tile roof

Utilities: Mains electric/water/ drainage

Heating: LPG/Oil

The property benefits from solar PV panels and storage batteries. Single phase supply with 6kwp solar panels, 5kw Givenergy inverter and 8 kwh Givenergy battery

Electrical Vehicle (EV) charging point installed: Yes

Broadband: FFTP, fibre to the property. Ultrafast speeds of up to 900 mbps is available at this property

Conservation Area: Yes, Forest South East

Restrictions on Permitted Development: Yes, the property is in New Forest National Park

Flood Risk: Very low

Parking: Private driveway

To the front of the property the house is screened from the lane by a retaining fence and there is gated off-street parking for several vehicles to the side. A pathway leads to the front door and gated access leads to the formal gardens.

The garden has a landscaped patio which provides a lovely entertainment terrace. The main garden is laid to lawn with mature planting surrounding and to the rear of the garden there is a secondary parking area and several outbuildings. As previously mentioned we feel this area could prove perfect for purchasers wishing to have secure storage for boats, cars or equestrian equipment.

Additional Information

Tenure: Freehold

Council Tax – E

EPC – C Current: 77 Potential: 88

Property Construction: Brick faced elevations and tile roof

Utilities: Mains electric/water/ drainage

Heating: LPG/Oil

The property benefits from solar PV panels and storage batteries. Single phase supply with 6kwp solar panels, 5kw Givenergy inverter and 8 kwh Givenergy battery

Electric Vehicle (EV) charging point installed: Yes

Broadband: FFTP, fibre to the property. Ultrafast speeds of up to 900 mbps is available at this property

Conservation Area: Yes, Forest South East

Restrictions on Permitted Development: Yes, the property is in New Forest National Park

Flood Risk: Very low

Parking: Two private driveways

To the front of the property the house is screened from the lane by a retaining fence and there is gated off-street parking for several vehicles to the side. A pathway leads to the front door and gated access leads to the formal gardens.

The garden has a landscaped patio which provides a lovely entertainment terrace. The main garden is laid to lawn with mature planting surrounding and to the rear of the garden there is a secondary parking area and several outbuildings. As previously mentioned we feel this area could prove perfect for purchasers wishing to have secure storage for boats, cars or equestrian equipment.

Additional Information

Tenure: Freehold

Council Tax – E

EPC – C Current: 77 Potential: 88

Property Construction: Brick faced elevations and tile roof

Utilities: Mains electric/water/ drainage

Heating: LPG/Oil

The property benefits from solar PV panels and storage batteries. Single phase supply with 6kwp solar panels, 5kw Givenergy inverter and 8 kwh Givenergy battery

Electrical Vehicle (EV) charging point installed: Yes

Broadband: FFTP, fibre to the property. Ultrafast speeds of up to 900 mbps is available at this property

Conservation Area: Yes, Forest South East

Restrictions on Permitted Development: Yes, the property is in New Forest National Park

Flood Risk: Very low

Parking: Private driveway

Bracken Lodge is situated close to the open forest and Hatchet Pond within close proximity of Beaulieu village centre and Bucklers Hard. The Georgian market town of Lymington lies to the west with its marinas and yacht clubs. There is also a popular marina at nearby Buckler’s Hard. The Beaulieu River Sailing Club is within one mile and offers opportunities for sailing enthusiasts, as well as the Royal Southampton Yacht Club in nearby St Leonard’s.

Living in Beaulieu

Beaulieu, as its name suggests, is beautiful. This village is a jewel of the New Forest, sitting prettily beside the River Beaulieu with Palace House, the seat of the Montagu family, as backdrop. This is an estate village which has been in the keeping of the Montagu family for 477 years. Today Beaulieu is familiar worldwide for the National Motor Museum, but the village attracts visitors, too. It has a quaint High Street of smart independents in pretty brick and timber-framed period properties, including art gallery, chocolate studio, floral designer, plus gift shops, tea room, village stores, garden centre, community garden and the village school (rated ‘good’ by Ofsted).

As for property, there are some good-sized period country houses, while Dock Lane, which runs alongside the river, is considered one of the most prestigious addresses in the Forest with a selection of stunning architect-designed modern builds.

Looking for an Estate Agent in Beaulieu? Spencers are here to help.

Back to results

£825,000

East Boldre, Brockenhurst

  • Bedrooms Bedrooms: 4
  • Bathrooms Bathrooms: 2
  • Receptions Living Rooms: 3

A superbly positioned four bedroom detached Forest home with an enviable plot and generous accommodation set in the highly sought after village of East Boldre. The property is positioned on a quiet road a few yards from the open Forest and enjoys far reaching views. There is a large parking area with separate access to the rear of the garden which could prove ideal for buyers wanting to accommodate a boat or store equestrian equipment. Planning has recently been approved to extend the property into the loft to create a large double bedroom with ensuite.

Property Details

  • Council Tax: Band E
  • Tenure: Freehold

Spencers Lymington Office


74 High Street
Lymington
SO41 9AL

Enquire about this property

    Full name *
    Phone number *
    I’m interested in


    A selection of Similar Properties