THE PROPERTY

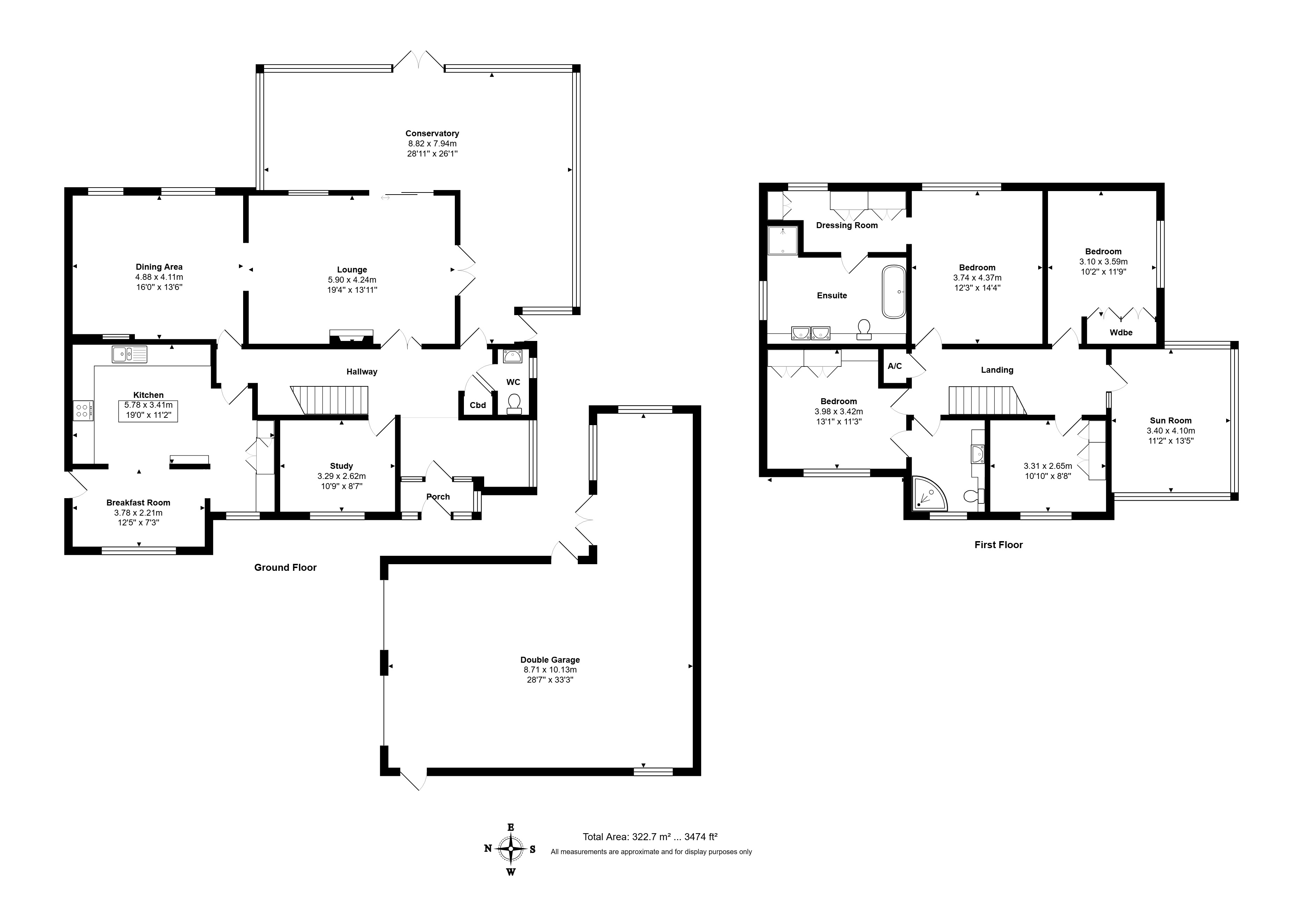
The covered porch opens into a bright and inviting entrance hall, setting the tone for the spacious living within. From here, you’ll find access to the main reception areas, the WC, cloaks cupboard, and the staircase leading to the upper floor.

At the front of the home, the stylish kitchen/breakfast room features a central island, bespoke timber cabinetry, and sleek quartz work surfaces. Premium appliances include a double oven, built-in microwave, integrated dishwasher, and a four-burner Bosch gas hob with extractor. A recently installed Bosch Worcester boiler is neatly housed in a cupboard, while two Bosch fridge freezers are also included. A rear door provides easy side access.

The living room is a superbly proportioned space, anchored by a striking stone-built fireplace. Rear-facing windows invite in an abundance of natural light, while twin patio doors open to the conservatory, perfectly positioned to enjoy views of the garden. An elegant arched opening flows through to a generous dining room, offering excellent space for entertaining.

Further ground-floor accommodation includes a versatile study overlooking the front aspect, ideal as a home office or additional bedroom.

Upstairs, four spacious bedrooms provide ample space for furniture and storage, all served by the family bathroom.

The primary suite impresses with a superb dressing area and a sleek four-piece ensuite, featuring a large walk-in shower with rainfall attachment, separate bath with shower attachment, double basin with backlit mirror, and fully tiled walls and floor.

A delightful first-floor conservatory enjoys a sunny southerly aspect.

THE SITUATION

This Friars Cliff area comprises leafy avenues and closes of modern family homes. It is a favourite with families or seeking a relaxed lifestyle thanks to the easy access to local sandy beaches and nearby amenities. These sweeping bays of gently sloping sand offer safe swimming, stunning views over Christchurch Bay, and are edged with pastel coloured beach huts and trees.

The nearby coastal town of Christchurch is a thriving high street of quality independents, plus an excellent selection of bistros, cafes, pubs and restaurants, among them Captain’s Club Hotel and The King’s Arms. Christchurch is also home to the immensely popular Christchurch Food Festival.

Friars Cliff also offers close proximity to the village of Highcliffe, which is ideal for those searching for a relaxed yet smart seaside lifestyle. A high street of useful independent shops includes a bakery, family butcher and gourmet grocery. Highcliffe also nurtures a foodie reputation with an annual food festival and tasty selection of cafes, gastropubs and restaurants.

Leisure facilities include Highcliffe Castle Golf Club while the New Forest lies just to the north.

OUTSIDE

The garden is designed for both relaxation and entertaining, with a neat lawn, a paved corner patio complete with built-in BBQ, and mature shrubs offering privacy. A gate at the rear leads directly into Steamer Point recreational grounds, with the Friars Cliff shoreline just moments away.

The detached double garage is fitted with two electric doors and offers additional space for storage or a personal gym.

Living in Highcliffe on Sea

Highcliffe on Sea (usually simply called Highcliffe) is a small, leafy coastal town on the Hampshire/Dorset border. West of Barton on Sea and east of Mudeford, Highcliffe is perfectly positioned for those in search of a relaxed yet smart beach lifestyle.

Features include secluded Highcliffe Beach which has panoramic views over Christchurch Bay to the Isle of Wight and Hengistbury Head. It’s a favourite with locals for walking, paddleboarding and surfing and can be reached via a pathway zig-zagging down through the gardens of Highcliffe Castle, once home to Mr Selfridge and now the venue for varied concerts, exhibitions and fairs.

Further outstanding amenities include Highcliffe Castle Golf Club and Steamer Point Nature Reserve. In addition Highcliffe has foodie appeal thanks to the annual Highcliffe Food & Arts Festival, and a good selection of independents and eateries, such as family-owned butcher’s, beachfront cafes, Raymond Blanc’s brasserie-style gastropub The Oaks and, just up the road on the edge of the New Forest, luxurious Chewton Glen Country House Hotel.

Families are also drawn by the schooling. Local primaries and secondaries are judged to be at least ‘good’ according to Ofsted – including Highcliffe St Mark’s Primary and Highcliffe Secondary School and Sixth Form. Meanwhile local independents include Durlston Court and Ballard, both rated ‘excellent’ by the Independent Schools Inspectorate.

The New Forest lies three miles to the north, the nearest sizable town is Christchurch (also three miles), and there is good accessibility via the road network to Lymington (nine miles), Bournemouth (10 miles), and Southampton (21 miles). A mainline railway station at nearby Hinton Admiral provides services to London Waterloo in approximately two hours.

Looking for an Estate Agent in Highcliffe? Spencers are here to help.

Back to results

£1,150,000

Friars Cliff, Christchurch

  • Bedrooms Bedrooms: 4
  • Bathrooms Bathrooms: 2
  • Receptions Living Rooms: 5

A spacious detached family residence located within a peaceful cul-de-sac of only eight homes in the sought-after Friars Cliff area. Offering over 3,000 square feet of adaptable living space, the property benefits from a private gated access leading directly to Avon Beach, just 500 feet away. The home also features private rear gardens, generous off-road parking, and a detached double garage.

Property Details

  • Council Tax: Band G
  • Tenure: Freehold

Spencers Highcliffe Office


368-370
Lymington Road
Highcliffe
Christchurch
BH23 5EZ

Enquire about this property

    Full name *
    Phone number *
    I’m interested in


    A selection of Similar Properties