INTRODUCTION TO SHEPHERDS GREEN

Tucked away in the sought-after village of Hordle, just moments from the charming harbour town of Lymington, Shepherds Green is a fresh take on countryside and coastal living.

This exclusive Bargate development brings together the best of all worlds, elegant architecture, thoughtful landscaping, and a true connection to nature in a collection of beautifully crafted 2, 3 and 4 bedroom homes.

Every home at Shepherds Green is designed to elevate the everyday. From light-filled open-plan spaces to luxurious finishes and energy-efficient technology, these homes don’t just meet modern expectations they exceed them.

Whether you’re a growing family, a discerning downsizer, or searching for your forever home on the edge of the New Forest, this is a place where quality, comfort and countryside come together in perfect harmony.

THE LOCATION

Shepherds Green sits on the edge of the New Forest National Park and minutes from the Solent coast. Enjoy woodland walks, open countryside and coastal air on your doorstep.

The peaceful village of Hordle is close to the vibrant harbour town of Lymington, with its sailing clubs, cafés and shops.

Excellent schools and strong transport links to Southampton, Bournemouth and London make this an ideal location for families and professionals seeking a rural setting with city access.

BARGATE CREDENTIALS

Bargate creates high-quality, energy-efficient homes across some of Hampshire’s most sought-after locations.

Each development is carefully planned with generous living spaces, flexible layouts and timeless finishes, combining craftsmanship with modern design and comprehensive warranties for peace of mind.

From first enquiry to moving in, the Bargate team offers personal support at every stage. With a strong focus on sustainability and community, Bargate not only builds exceptional homes but also enhances the landscapes and neighbourhoods around them, delivering lasting value for residents and future generations.

BARGATE’S GREEN ETHOS & NATURE HUB

At Bargate, we believe new communities should grow in harmony with nature. That’s why every development is carefully designed to protect and enhance the local environment — from preserving mature trees to creating dedicated Nature Hubs. These vibrant spaces support British wildlife by providing food, shelter, and safe passage for birds, insects, hedgehogs, and pollinators, helping nature thrive alongside our homes.

KITCHEN SPECIFICATION

Kitchen Furniture

– Designer wall and floor units

– 40mm Laminate worktops with complimentary upstands

– Under cabinet LED spotlights to wall units

Integrated Appliances

– Neff ovens, extractors and induction hobs

– Indesit fridge/freezers and dishwashers

BATHROOM SPECIFICATION

Basins, Baths & WC

– Roca suites to all property types

Wall & Floor Tiling

– Porcelanosa floor tiling to all WCs, ensuites and bathrooms

– Porcelanosa ceramic wall tiling

SUPERIOR SPECIFICATION

Internal Lighting

– Lumi downlighting to kitchen area, bathroom, ensuite, dressing room and WCs, where applicable

– Pendant lighting to all remaining rooms

BT Points & Satellite

– Pre-wired for BT Fibre ready for Openreach

– Pre-wired for Sky Q at multimedia plate

Alarms

– Smoke, heat and carbon monoxide detectors fitted

Heating System

– Daikin air source heat pump

Radiators

– Towelrads compact radiator throughout all homes

– Towel warmers to all bathrooms, ensuite and WC

Heating Control

– Underfloor heating to be zoned and individually controlled by Towelrads smart thermostats

– Radiators controlled by Honeywell T6 smart thermostats

External Finishes

– Sensor lighting to the front of all homes

– Waterproof double sockets fitted to the front and rear of all homes

– Photovoltaic solar panels fitted to all homes

– 32AMP electric vehicle charger fitted to all homes

ADDITIONAL INFORMATION

– Energy Performance Rating: B

– Council Tax Band: TBC

– Maintenance Charge: Estimated to be approximately £400 per annum

– 10 Year Warranty with Premier

– Broadband: TBC

Living in Sway

This leafy village on the southern edge of the New Forest has everything you could want for family life in the Forest. There’s a village primary school rated ‘outstanding’ by Ofsted, a vibrant community with annual carnival, village hall (activities range from archery to yoga), plus cricket, football and tennis clubs. And while there’s easy access to the Forest’s open grassland, heathland and woodland for dog walking and cycling, Sway is off the Forest’s usual tourist tracks and feels peaceful and relaxed.

The village centre combines the unusual with the desirable: a contemporary arts hub, quality businesses like Sway Woodburning Centre, mainline railway station, choice of popular pubs, good cafe/deli, award-winning butcher’s, village store and post office among others.

Property is an attractive pick ‘n’ mix of everything including substantial country houses, individual modern builds in good-sized plots, family homes, imaginative refurbishments, closes of quality new terraces, chalet bungalows and a smattering of Edwardian semi-detached villas and thatched cottages.

Sway’s claims to fame include 200-foot high Sway Tower, the tallest structure made out of non-reinforced concrete, and the countryside around Sway was the setting for Captain Marryat’s work The Children of the New Forest.

Looking for Estate Agents in Sway? Spencers are here to help.

Back to results

£630,000

Hordle, Lymington

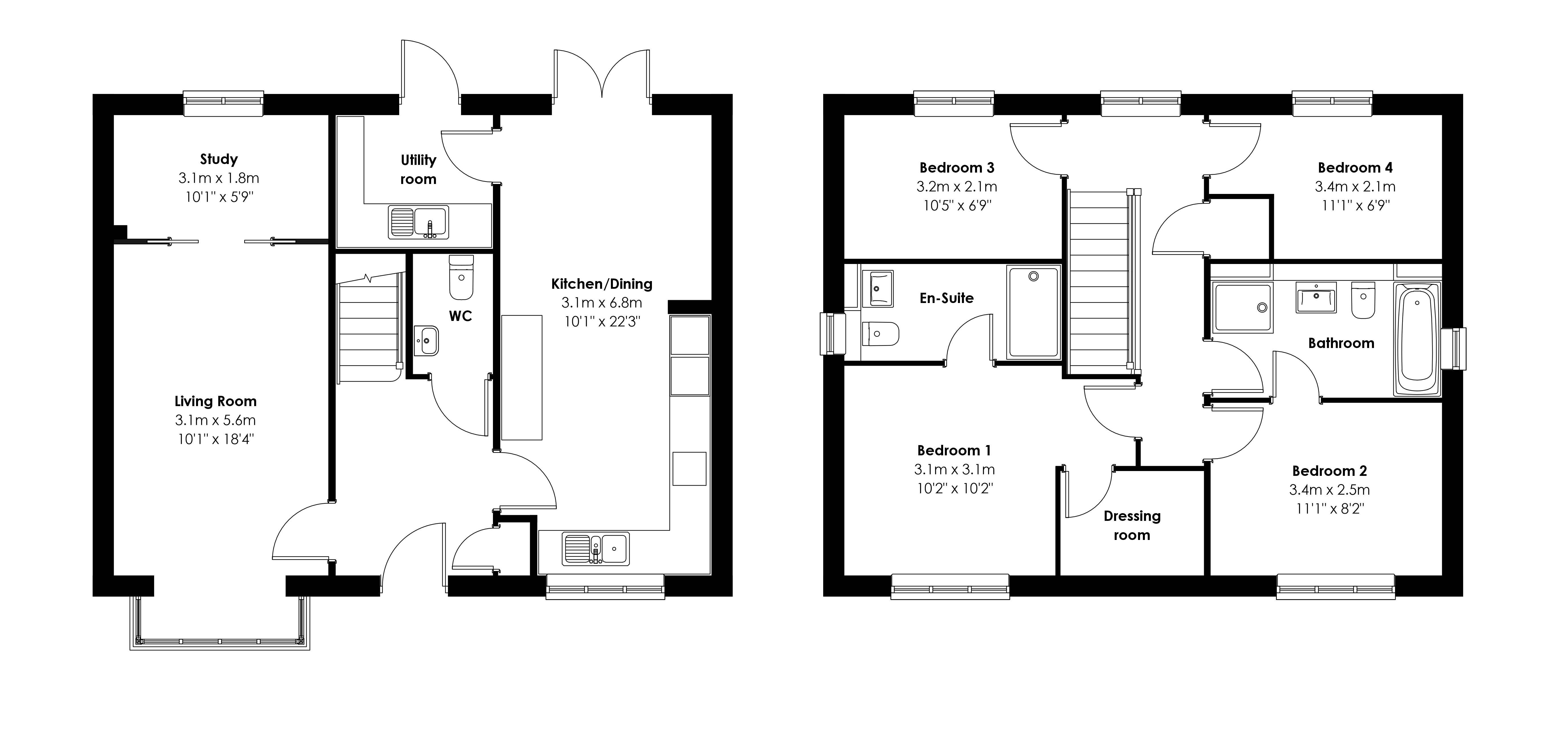
  • Bedrooms Bedrooms: 4
  • Bathrooms Bathrooms: 2
  • Receptions Living Rooms: 2

SHOW HOMES NOW AVAILABLE TO VIEW - This four-bedroom home with its own garage features a spacious kitchen/dining area, bright living room, study and utility. Upstairs, the main bedroom benefits from an en-suite, complemented by three further bedrooms and a stylish family bathroom all designed for modern family living. Two parking spaces and garage.

Property Details

  • Tenure: Freehold

Spencers Highcliffe Office


368-370
Lymington Road
Highcliffe
Christchurch
BH23 5EZ

Enquire about this property

    Full name *
    Phone number *
    I’m interested in


    A selection of Similar Properties