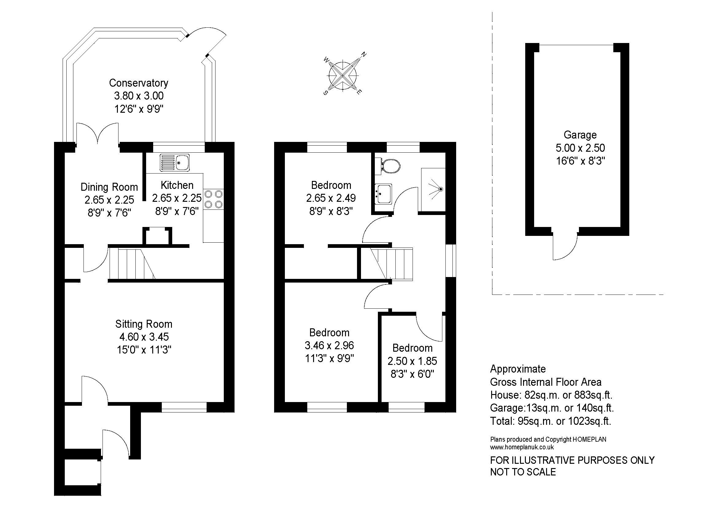
An entrance lobby provides space for coats and boots and leads into the living room, which features double-glazed windows to the front. An open archway connects to the dining area, positioned beside the kitchen and overlooking the south-facing private rear garden. The conservatory extends the living space and offers lovely garden views. The kitchen is well equipped with a range of base and wall units, an integrated electric oven, hob, and extractor hood, along with space for a freestanding fridge/freezer and washing machine. Upstairs, the property offers two double bedrooms and a single bedroom. The principal bedroom enjoys views over the front garden and includes a fitted storage cupboard. The second double bedroom also benefits from fitted cupboards and is set to the rear of the property, with peaceful outlooks over the garden, while the third bedroom is ideal as a single room, nursery, or home office. The modern family bathroom completes the accommodation, featuring a bath with shower over. The property benefits from solar panels with a feed-in tariff and generates some income as well as reduces electricity bills.

The property is situated in a quiet cul-de-sac tucked in the corner with a path leading up to the front door and garden. The front garden has an area of lawn and the rear garden is accessed via a secure side gate and path and has the benefit of being south facing and offers a very good degree of privacy. There is a patio adjacent to the conservatory allowing for easy al fresco entertaining.

Services

Tenure: Freehold

Council Tax: C

EPC: B Current: 83 Potential: 94

Property Construction: Brick faced elevations and tile roof

Utilities: Mains electric, gas, water and drainage. The property benefits from Solar PV Panels which have a feed-in tariff and generate some income as well as reducing electricity bills. The installation date was July 2014, so the tariffs have another 14 years to run. The performance of the PV varies with the weather, but over the last 12 months is as follows:

 

Feed In Tarrif Payments received:          £ 675

Electricity Generated:                                2,550kWh

Heating: Gas central heating

Broadband: Superfast broadband download speeds of up to 33 mbps are available at this property (ofcom)

Parking: Garage, unallocated street parking

The property is approximately 1.3 miles from the popular sailing and yachting facilities of Lymington and access to the Solent is within just a few minutes drive. The Georgian market town of Lymington has a famous Saturday market and there is a ferry service to Yarmouth, Isle of Wight. The village of Brockenhurst lies approximately 4 miles north and benefits from a mainline station with direct access to London Waterloo and an extensive range of local shops, restaurants, a primary school, a popular tertiary college and the renowned Brockenhurst Golf Club.

Living in Lymington

This vibrant and picturesque Georgian market town, positioned between the Solent, Lymington River and the New Forest, has been a massive draw for many people over the years.

It has always attracted ‘yachties’ as it’s considered the UK’s sailing capital with its boatyards, marinas and sailing clubs. It is also popular with families and retirees escaping London and the Home Counties in search of a better quality of life, often light-heartedly referred to as ‘Richmond by the Sea’. It’s also the choice for many in the New Forest who are considering downsizing, but want to remain in the area.

Lymington is a lively hub. It has a very distinctive centre with many independents (such as Elliotts of Lymington for designer fashion) as well as a strong smattering of top quality names (including Musto and Waitrose). A tasty range of eateries includes cafes, pubs and restaurants – check out two good tapas bars, Elderflower on Quay Hill (the chef is ex-Chewton Glen) and stylish Stanwells House Hotel. And every Saturday the High Street is taken over by a proper, old-fashioned market with everything from fresh fruit and vegetables to flowers and plants, fashion to fishing equipment, and vintage collectables to artisan food producers.

Property ranges from elegant period townhouses in the town centre to big family homes down leafy lanes ‘South of the High Street’ and new waterside development. Looking for an Estate Agent in Lymington? Spencers are here to help.

Back to results

£335,000

Lymington

  • Bedrooms Bedrooms: 3
  • Bathrooms Bathrooms: 1
  • Receptions Living Rooms: 2

A charming and well-presented three bedroom end-of-terrace home with the benefit of solar panels, offering a garage in a nearby block and a larger-than-average south-facing garden. Nestled in a quiet cul-de-sac, the property is within easy walking distance of local schools and town amenities.

Property Details

  • Council Tax: Band C
  • Tenure: Freehold

Spencers Lymington Office


74 High Street
Lymington
SO41 9AL

Enquire about this property

    Full name *
    Phone number *
    I’m interested in


    A selection of Similar Properties