THE PROPERTY

An entrance porch with marble-effect tiled flooring opens into the hallway, providing access to all accommodations.

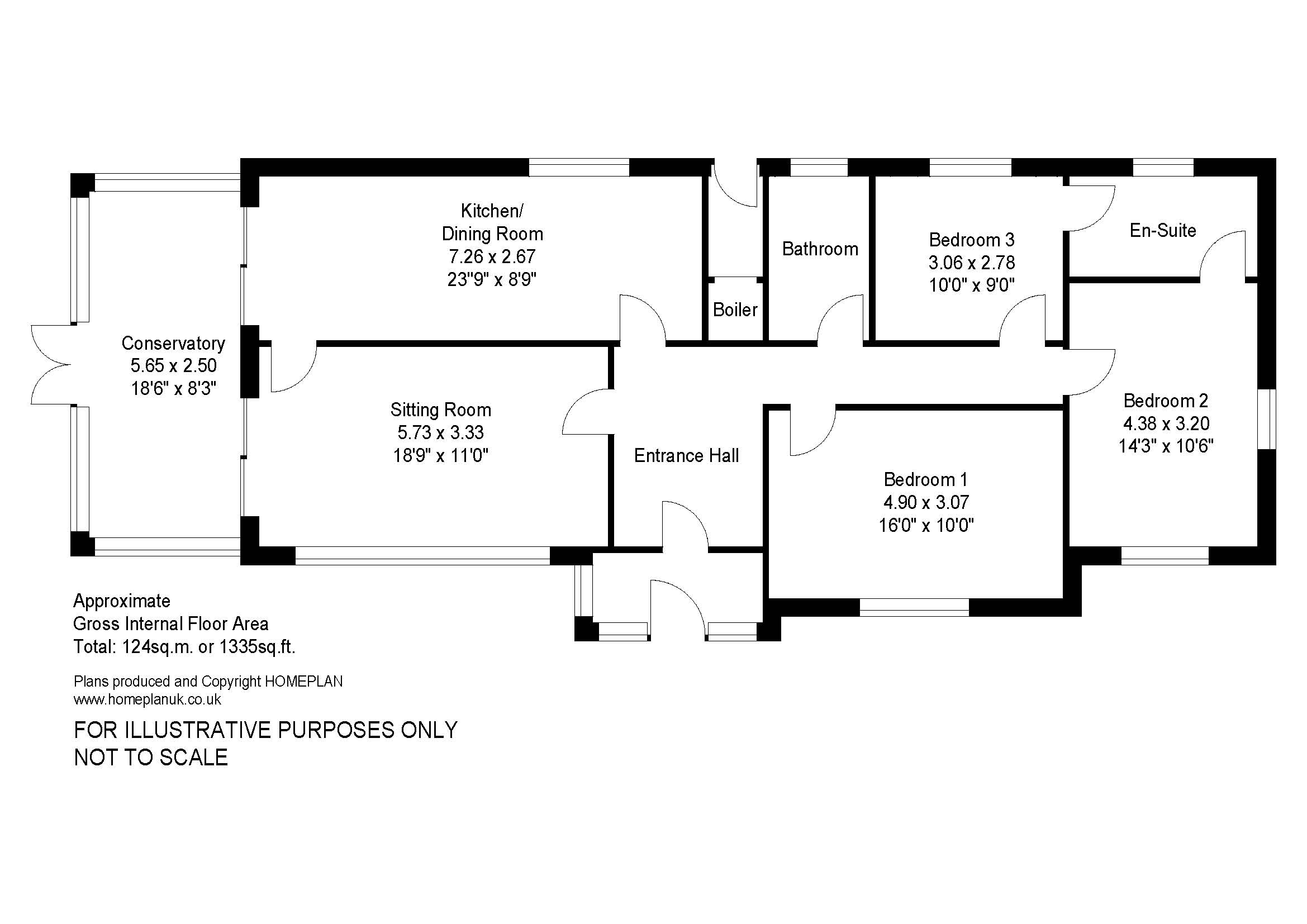
Bright and airy double-aspect sitting room featuring an inset flame-effect electric fire with a timber surround, forming an appealing focal point. Delightful kitchen/dining room fitted with a good range of modern wall, floor and drawer units with under unit light and timber effect worktop and an inset one and a half bowl sink unit with a mixer tap over

Integral appliances include Lamona double electric oven, four burner gas hob, extractor and ample space for fridge/freezer.

Generously proportioned conservatory with continuous tiled flooring throughout, complemented by UPVC double-glazed windows and doors that seamlessly open onto the rear patio and gardens.

Three spacious double bedrooms, two of them offering access to the Jack and Jill ensuite shower room. This modern ensuite is fully tiled and features a corner shower cubicle, a wash basin with convenient storage space below, a WC with an extractor fan and a heated towel rail

The bathroom is completely tiled and equipped with a white suite, including a panel bath with a mixer tap and a Mira shower overhead. It also features a wash basin with storage space underneath, a WC, complete with tiled flooring.

THE SITUATION

New Milton sits in a prime location with the New Forest to the north and Barton on Sea to the south.

This market town attracts families, drawn by its strong community, range of facilities, mainline station and schooling provision.

There are acclaimed independent schools, including Durlston Court and Ballard School, both rated ‘excellent’, while state schools include New Milton Infants judged ‘outstanding’, New Milton Junior rated ‘good’, and Arnewood Secondary which is ‘good’ with ‘outstanding’ 16-19 study programme.

The town centre has a strong selection of shops, among them butcher, bakery, M&S Food and a traditional quality department store. Leisure facilities feature an arts centre with a programme of performances and workshops, health and sports centre with pool, recreation ground and skatepark.

Eating out experiences range from gastropubs to fine dining via The Kitchen, a relaxed restaurant and cookery school at Chewton Glen Country House Hotel overseen by TV Chef James Martin.

New Milton developed after the arrival of the railway in the late 19th century (train services into London take around two hours), therefore property choice comprises some character property, modern family homes on tree-lined avenues, and country houses bordering the New Forest.

OUTSIDE

Positioned on an attractive corner plot, the property boasts a double-width driveway, offering ample off-road parking and leading to the detached double garage featuring a pitched roof and an electrically operated roller door. The front garden’s majority is paved with a charming patio, accented by subtle mature hedging that separates it from the pavement. An exclusive south-westerly side garden reveals a spacious paved patio area that seamlessly blends with a primarily lawned stretch and is framed by well-established shrubbery, and it also features a practical timber shed.

Living in Barton on Sea

Barton on Sea enjoys a stunning coastal location with views stretching from Hurst Castle to Hengistbury Head. In addition it benefits from all of the facilities of neighbouring New Milton, such as mainline station, arts centre, weekly market and range of shops.

Although Barton on Sea has a history dating back to Anglo Saxon times it developed relatively recently and comprises mostly avenues and closes of mid-century and later detached family homes, plus a row of old coastguard cottages, substantial properties in big plots with even bigger views on Barton Common Road and some imaginative new builds including town houses.

Traditionally it has been a popular area for those considering retiring, but it also offers a great deal for families with parks and excellent state and independent schooling. New Milton Junior School is rated ‘good’ by Ofsted, while both New Milton Infant School and The Arnewood School (11-19 Academy), are rated ‘outstanding’ by Ofsted. And Durlston Court Preparatory is ranked an impressive number 46 in The Times list of the top 100 independent prep schools. Local facilities include clifftop cafes, a deli and Pebble Beach restaurant which is a Good Food Guide stalwart, plus there’s a 27-hole clifftop golf course with impressive views.

Looking for an Estate Agent in Barton on Sea? Spencers are here to help.

Back to results

£625,000 Guide Price

New Milton

  • Bedrooms Bedrooms: 3
  • Bathrooms Bathrooms: 2
  • Receptions Living Rooms: 2

A beautifully presented and spacious three-bedroom detached bungalow, featuring two reception rooms, located in a prestigious residential area. This tranquil property offers a serene ambiance while conveniently positioned just a short stroll away from New Milton Town Centre. The bungalow boasts a contemporary kitchen/dining area and includes a detached double garage, which holds planning permission for conversion into additional living space.

Property Details

  • Council Tax: Band E
  • Tenure: Freehold

Spencers Highcliffe Office


368-370
Lymington Road
Highcliffe
Christchurch
BH23 5EZ

Enquire about this property

    Full name *
    Phone number *
    I’m interested in


    A selection of Similar Properties